- ★お気に入りに追加
- この物件に対して問い合わせる
- 印刷用ページを開く
- マッチングメール登録へ
| 物件番号 | 3361328 | 物件種目 | 事務所 |
|---|
※写真未撮影のため、ストリートビューの写真を表示しています。
| 所在地 | 大阪府大阪狭山市半田2丁目 | ||
|---|---|---|---|
| 価格 |
7,500万円 → 6,500万円 ※値下げ(坪単価:128,622円)消費税未確認 消費税について、改正後の消費税額が未確認の物件もございますので案内時ご確認ください。 |
||
| 建物面積 | 1,213.26m²/367.01坪 | 土地面積 | 1,670.6m²/505.36坪 |
| 構造/階数 | 鉄骨造/2階建ての1~2階部分 | 外装 | 合金メッキ鋼板葺 |
| 用途地域 |
第二種中高層住居専用地域 用途地域について |
登録日
|
2026年2月26日 |
| 沿線/駅 | 南海高野線/金剛駅 徒歩8分 | 高速道路出入口 | 阪和自動車道 美原南から約7km |
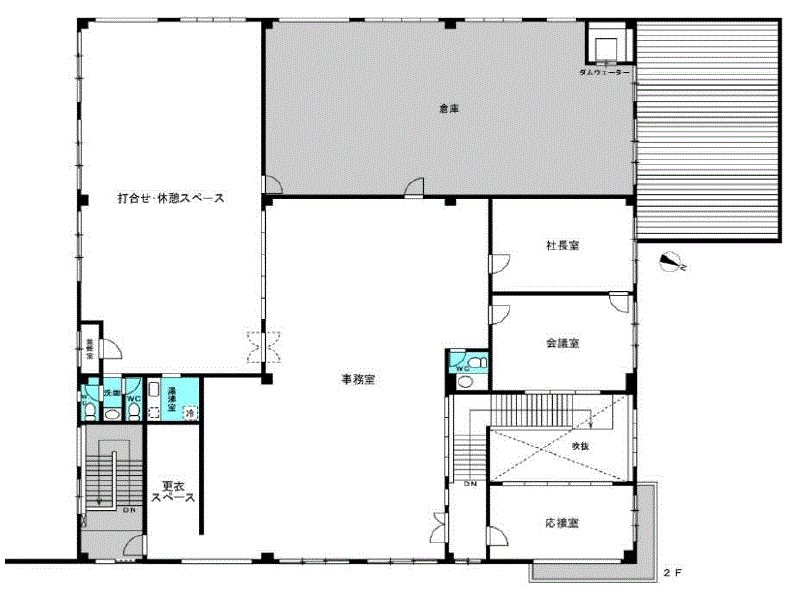
| 各階面積 | 1F:606.63m²/183.5坪 2F:606.63m²/183.5坪 | ||
|---|---|---|---|
| 計測方式 | 国土法 | ||
| 地目 | 田 | 地勢 | |
| 道路幅員 | 二方 東 9m 西 4.5m | ||
| 駐車場 | 有 | 築年月 | 2015年3月 |
| 現況 | 空家 | 引渡し | 相談 |
| 都市計画 | 市街化区域 | ||
| 防火指定 | 準防火地域 | 高度地区 | |
| 路線価 | 路線価を確認する | ||
| 建築確認 | 建築条件 | ||
| 建蔽率 - 容積率 | 60% - 200% | ||
| 設備関連 | 電気 上水道 下水道 | ||
| 周辺状況 |
*近隣民家有 *下水道処理区域 *河川保全区域 |
||
| その他 |
*地目:田、宅地、山林 *開発許可番号:大阪狭山市指令都広第9-6号 *以前の業種:オーラルケアネット販売 *太陽光設備有 *西側の駐車場は売買対象外 *債権者同意要 *現状有姿(残置物を含む) *残置物は買主負担 *公簿取引 *契約不適合責任免責 *売却許可要 *売主は重説に押印なし *事業用定期借地契約(30年)公正証書作成 *公正証書作成費用:買主負担 *新地代:相談(旧地代38万円/月) *新差入保証金:相談(旧保証金456万円) 売買価格とは別途必要 |
||
| 取引態様 | 仲介 | ||
| 大型車輌 | 可 | ヤード | 有 |
|---|---|---|---|
| 近隣住宅 | 有 | プラットホーム | - |
| 事務所 | 有 | クレーン | - |
| リフト/EV | - | ||
※物件成約の際には売買価格の3.3% + 6.6万円頂戴致します。
-
事前連絡なしの現地への突然の訪問はご遠慮ください。
募集物件ごとに家主事情・テナントの諸事情等もあり、ごくまれですが、直接物件を見に行かれた事によるトラブルが発生しています。
現地、見に行かれる際は、必ず事前に弊社担当者までご連絡ください。 -
現地業者看板には直接連絡しないでください。
現地看板に連絡されますと仲介手数料の2重請求となってしまう恐れがあります。
物件についての質問等は必ず弊社(三基建設)TEL 06-6304-0999 までご連絡ください。
メールでのご質問は toiawase@sanki.info まで - 大型車両欄の「可」の表示については前面道路幅員が概ね6m以上の道路として住宅地図上から判断したものです。実際については現地をご確認ください。
-
近隣住宅欄の「無」の表示については住宅地図上で隣接する住宅が無く、10m以下の道路を挟んだ向かいに住宅が無いことを基準にしております。実際については現地をご確認ください。
-
2階面積が1階面積の3分の1の建物には平家建と記載しております。
-
「全文キーワード」による検索は、大型車両・近隣住宅などの「可・不可」「有・無」の項目は検索されません。
- 本ページ更新中に成約することもございます。あらかじめ御了承ください。



















